

Whakaaro | Understanding
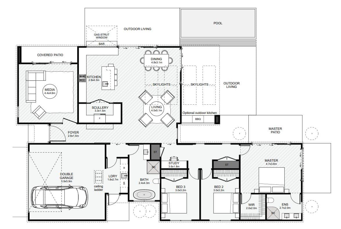
209m2
2
3
2
2
About this Home
Designed for limitless family living, this twin-gable home combines modern and traditional architecture. The kitchen, dining, and living areas flow out to a covered outdoor living area with an outdoor kitchen and bar on either side. There is even room for an optional pool. If you're looking for an ultimate single-storey family home, you're looking at it!


