

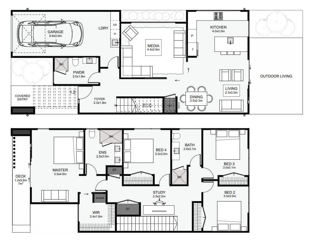
Tūī | Tui Bird
188m2
1
4
2.5
2
About this Home
This ultra-modern, four-bedroom townhouse is designed to feel more like a family home. Downstairs, there's dual living, both accessible to the kitchen and a private powder room. Upstairs, is an open study, four bedrooms and two bathrooms. The master enjoys a large walk-in wardrobe, an ensuite and access to a long balcony that will impress! This townhouse has all the design boxes ticked for anyone with modern taste!


